Splendida Porzione di Bifamiliare con Giardino Privato
Montale
Descrizione
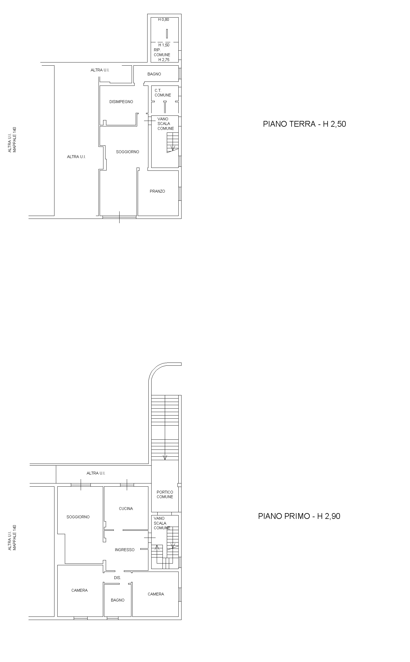
MP\4-Montale Rangone, Immersa nel verde e situata in una strada chiusa estremamente tranquilla, in casa indipendente bifamiliare, proponiamo in vendita una soluzione abitativa ideale per chi cerca ampi spazi, indipendenza e la comodità di due alloggi distinti ma unici. La proprietà si distingue per un generoso giardino privato di circa 300 mq fronte abitazione, offrendo un’oasi di riservatezza e relax. L’immobile è strutturato in modo funzionale per ospitare due nuclei familiari o per chi desidera una zona lavoro/ospiti completamente autonoma. Al piano terra si sviluppa un primo alloggio indipendente composto da un accogliente soggiorno, una cucina, un ampio disimpegno arredabile e un bagno. Questo livello è ideale per genitori o figli che cercano la propria autonomia pur rimanendo vicini al nucleo principale o come garage e servizi per chi ha un hobby. Il piano primo, raggiungibile tramite due scale, una esterna principale e una scala interna secondaria, ospita l’abitazione principale caratterizzata da ambienti luminosi e ben distribuiti. La zona giorno si compone di un ampio soggiorno con camino e una cucina abitabile separata, entrambi con affaccio su un balcone e sul verde. La zona notte comprende due camere da letto matrimoniali e un bagno padronale. Completano la proprietà i locali tecnici e le pertinenze comuni con l’altra unità immobiliare sita al piano secondo che garantiscono massima praticità. Proposta a 348.000 €, questa residenza rappresenta una rara opportunità per vivere nella zona più esclusiva di Montale, coniugando indipendenza, ampi spazi verdi e versatilità abitativa. Per info e visite contatta la nostra agenzia AB Immobiliare srl passando a trovarci a Castelnuovo Rangone frazione Montale via Vandelli n° 56/B oppure telefonando al numero. Per poter visionare tantissime altre proposte immobiliari, non dimenticate di consultate il sito, la nostra pagina facebook @abimmobiliarenet oppure il nostro canale youtube abimmobiliare. Orari dal lunedi al venerdi dalle 9,30 alle 13,00 dalle 15,30 alle 19,30; sabato dalle 9,30 alle 13,00. Domenica mattina solo su appuntamento con largo anticipo.
Caratteristiche
Codice Proprietà
13868
Prezzo
€348.000
Tipo di Proprietà
Appartamento con giardino
Stato della Proprietà
Vendita
Camere da letto
2
Bagni
2
Anno di costruzione
1970
Dimensione211 m2
Lotto di Terreno
m2
300 m2-
APE
F
Planimetrie
Slideshow
Zona:
Montale
Sei interessato a questa proprietà?
Vorresti maggiori informazioni riguardo i nostri immobili o i nostri servizi? Entra in contatto con noi! Saremo lieti di rispondere al meglio alle tue esigenze.
Altri immobili nelle vicinanze:
Cerchi casa? Scopri la bacheca annunci completa:
Copyright © AB Immobiliare Srl | Privacy & Cookie Policy |
Splendida Porzione di Bifamiliare con Giardino Privato
13868
ID Proprietà
211 m2
Superficie
2
Camere da letto
2
Bagni
Descrizione
MP\4-Montale Rangone, Immersa nel verde e situata in una strada chiusa estremamente tranquilla, in casa indipendente bifamiliare, proponiamo in vendita una soluzione abitativa ideale per chi cerca ampi spazi, indipendenza e la comodità di due alloggi distinti ma unici. La proprietà si distingue per un generoso giardino privato di circa 300 mq fronte abitazione, offrendo un’oasi di riservatezza e relax. L’immobile è strutturato in modo funzionale per ospitare due nuclei familiari o per chi desidera una zona lavoro/ospiti completamente autonoma. Al piano terra si sviluppa un primo alloggio indipendente composto da un accogliente soggiorno, una cucina, un ampio disimpegno arredabile e un bagno. Questo livello è ideale per genitori o figli che cercano la propria autonomia pur rimanendo vicini al nucleo principale o come garage e servizi per chi ha un hobby. Il piano primo, raggiungibile tramite due scale, una esterna principale e una scala interna secondaria, ospita l’abitazione principale caratterizzata da ambienti luminosi e ben distribuiti. La zona giorno si compone di un ampio soggiorno con camino e una cucina abitabile separata, entrambi con affaccio su un balcone e sul verde. La zona notte comprende due camere da letto matrimoniali e un bagno padronale. Completano la proprietà i locali tecnici e le pertinenze comuni con l’altra unità immobiliare sita al piano secondo che garantiscono massima praticità. Proposta a 348.000 €, questa residenza rappresenta una rara opportunità per vivere nella zona più esclusiva di Montale, coniugando indipendenza, ampi spazi verdi e versatilità abitativa. Per info e visite contatta la nostra agenzia AB Immobiliare srl passando a trovarci a Castelnuovo Rangone frazione Montale via Vandelli n° 56/B oppure telefonando al numero. Per poter visionare tantissime altre proposte immobiliari, non dimenticate di consultate il sito, la nostra pagina facebook @abimmobiliarenet oppure il nostro canale youtube abimmobiliare. Orari dal lunedi al venerdi dalle 9,30 alle 13,00 dalle 15,30 alle 19,30; sabato dalle 9,30 alle 13,00. Domenica mattina solo su appuntamento con largo anticipo.
Indirizzo
- Country: Italia
- City / Town: Montale
- ID Proprietà 13868
- Prezzo €348.000
- Categria Proprietà Appartamento con giardino
- Status Proprietà Vendita
- Camere da letto 2
- Bagni 2
- Anno di Costruzione 1970
- Superficie 211 m2
- Prefisso 300 m2
- APE F






















