Metà casa bifamiliare di ampie metrature
Montale
Descrizione
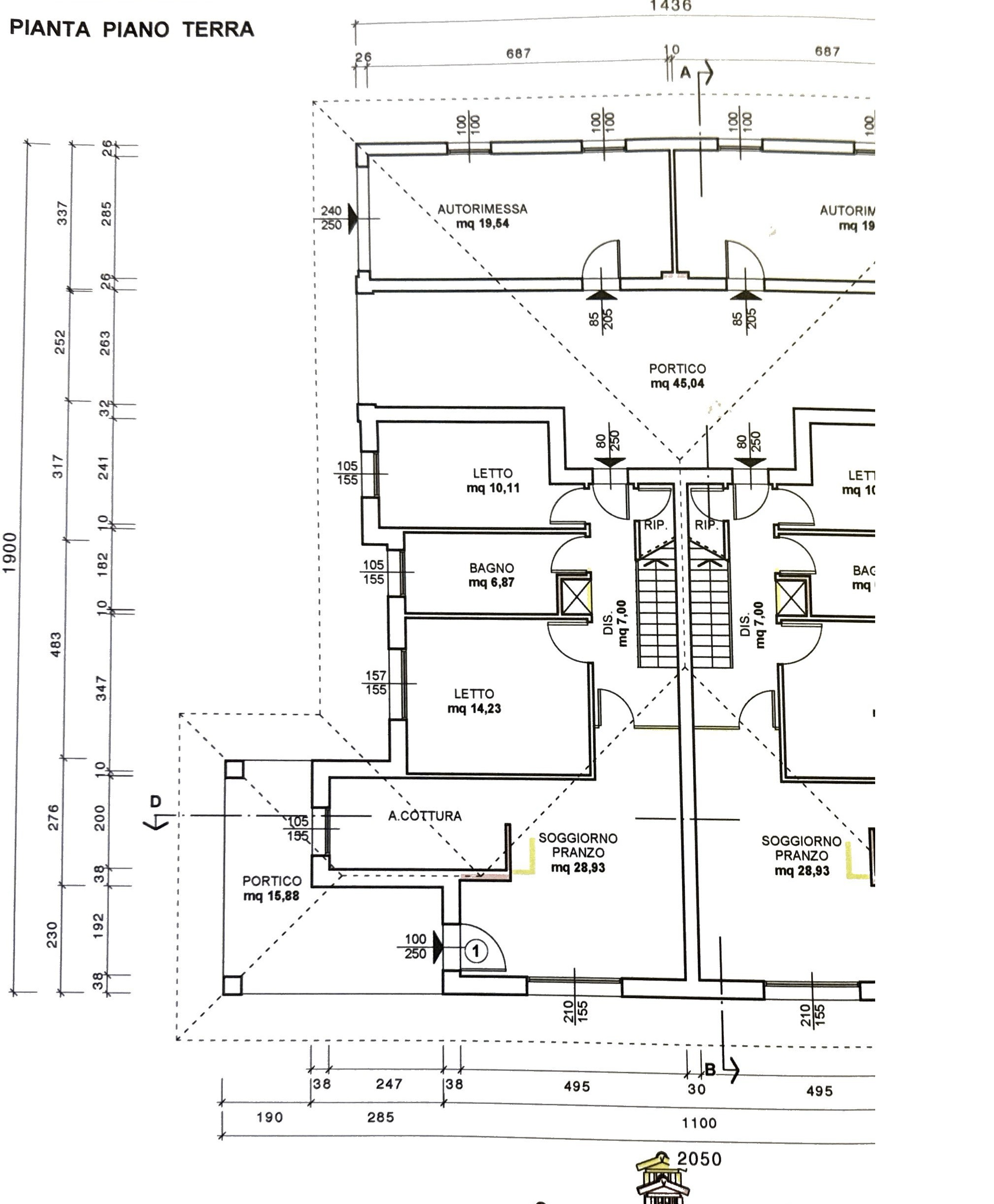
MP\3-Montale Rangone, in una zona residenziale di pregio caratterizzata da ampie aree verdi e un contesto estremamente silenzioso, proponiamo una porzione di villetta bifamiliare progettata con particolare attenzione all’efficienza tecnologica. L’unità si distingue per la presenza di un impianto fotovoltaico da 4,32 kW e per il sistema di riscaldamento a pavimento, soluzioni che garantiscono elevate prestazioni energetiche e un comfort termico costante in tutti i volumi abitativi. L’ingresso principale conduce a una luminosa zona giorno di quasi 29 mq che integra soggiorno e pranzo, comunicante con un angolo cottura funzionale e con un ampio portico coperto di circa 16 mq che espande lo spazio vivibile verso l’esterno. Un disimpegno centrale, con 2 ampi ripostigli, organizza la zona notte, composta da una camera matrimoniale di oltre 14 mq, una seconda camera da letto di circa 10 mq e un ampio bagno padronale. Completano i servizi del piano terra un’autorimessa di circa 20 mq e ulteriori porticati che proteggono gli accessi e le aree di sosta. Il piano superiore è interamente occupato da una spaziosa mansarda che offre una superficie calpestabile principale di 73 mq, con un’altezza massima di 2,90 metri che ne consente un utilizzo versatile come area pluriuso o deposito. Adiacente a questo vano si trova un’ulteriore soffitta di 37 mq con altezze medie più contenute, ideale come spazio tecnico o di stoccaggio. L’intera proprietà è circondata da un giardino privato su tre lati, delimitato da recinzioni metalliche dotate di cancelli pedonali e carrabili indipendenti. € 750.000 L’immobile è già libero e in pronta consegna. Riscrivilo in forma breve da vetrina
Caratteristiche
Codice Proprietà
13561
Prezzo
€750.000
Tipo di Proprietà
Villa
Stato della Proprietà
Vendita
Camere da letto
4
Bagni
2
Anno di costruzione
2012
Dimensione240 m2
Lotto di Terreno
m2
700 m2
Garages
1
Dimensione Garage
20 m2
700 m2-
APE
D
Planimetrie
Slideshow
Zona:
Montale
Sei interessato a questa proprietà?
Vorresti maggiori informazioni riguardo i nostri immobili o i nostri servizi? Entra in contatto con noi! Saremo lieti di rispondere al meglio alle tue esigenze.
Altri immobili nelle vicinanze:
Cerchi casa? Scopri la bacheca annunci completa:
Copyright © AB Immobiliare Srl | Privacy & Cookie Policy |
Metà casa bifamiliare di ampie metrature
13561
ID Proprietà
240 m2
Superficie
4
Camere da letto
2
Bagni
Descrizione
MP\3-Montale Rangone, in una zona residenziale di pregio caratterizzata da ampie aree verdi e un contesto estremamente silenzioso, proponiamo una porzione di villetta bifamiliare progettata con particolare attenzione all’efficienza tecnologica. L’unità si distingue per la presenza di un impianto fotovoltaico da 4,32 kW e per il sistema di riscaldamento a pavimento, soluzioni che garantiscono elevate prestazioni energetiche e un comfort termico costante in tutti i volumi abitativi. L’ingresso principale conduce a una luminosa zona giorno di quasi 29 mq che integra soggiorno e pranzo, comunicante con un angolo cottura funzionale e con un ampio portico coperto di circa 16 mq che espande lo spazio vivibile verso l’esterno. Un disimpegno centrale, con 2 ampi ripostigli, organizza la zona notte, composta da una camera matrimoniale di oltre 14 mq, una seconda camera da letto di circa 10 mq e un ampio bagno padronale. Completano i servizi del piano terra un’autorimessa di circa 20 mq e ulteriori porticati che proteggono gli accessi e le aree di sosta. Il piano superiore è interamente occupato da una spaziosa mansarda che offre una superficie calpestabile principale di 73 mq, con un’altezza massima di 2,90 metri che ne consente un utilizzo versatile come area pluriuso o deposito. Adiacente a questo vano si trova un’ulteriore soffitta di 37 mq con altezze medie più contenute, ideale come spazio tecnico o di stoccaggio. L’intera proprietà è circondata da un giardino privato su tre lati, delimitato da recinzioni metalliche dotate di cancelli pedonali e carrabili indipendenti. € 750.000 L’immobile è già libero e in pronta consegna. Riscrivilo in forma breve da vetrina
Indirizzo
- Country: Italia
- City / Town: Montale
- ID Proprietà 13561
- Prezzo €750.000
- Categria Proprietà Villa
- Status Proprietà Vendita
- Camere da letto 4
- Bagni 2
- Anno di Costruzione 2012
- Superficie 240 m2
- Prefisso 700 m2
- Garagey 1
- Dimensione Garage 20 m2
- APE D
























